4-izbový byt na predaj, Višňová ulica, sídlisko Sekčov, Prešov
4-izbový byt

na predaj

Lokalita
Lokalita

Prešov

Typ nehnuteľnosti
Typ nehnuteľnosti

4-izbový byt

Plocha
Úžitková plocha:

88 m2

Cena
Cena

185 000 €

4-izbový byt na predaj, Višňová ulica, sídlisko Sekčov, Prešov - 1
4-izbový byt na predaj, Višňová ulica, sídlisko Sekčov, Prešov - 2
4-izbový byt na predaj, Višňová ulica, sídlisko Sekčov, Prešov - 3
4-izbový byt na predaj, Višňová ulica, sídlisko Sekčov, Prešov - 4
4-izbový byt na predaj, Višňová ulica, sídlisko Sekčov, Prešov - 5
4-izbový byt na predaj, Višňová ulica, sídlisko Sekčov, Prešov - 6
4-izbový byt na predaj, Višňová ulica, sídlisko Sekčov, Prešov - 7
4-izbový byt na predaj, Višňová ulica, sídlisko Sekčov, Prešov - 8
+ 13 foto
Nehnuteľnosť

na predaj

185 000 €

4-izbový byt na predaj, Višňová ulica, sídlisko Sekčov, Prešov

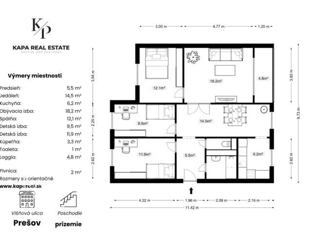
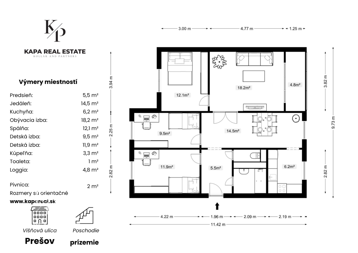
Užitková plocha: 88 m²
Vlastníctvo: osobné
Stav: pôvodný stav
Zariadenie: čiastočne zariadený
Počet izieb: 4
Počet loggii: 1
Orientácia: juhovýchod
Inžinierske siete: voda , elektrika , plyn , kanalizácia
Vybavenosť: loggia , pivnica , verejné parkovnie , výťah
Popis nehnuteľnosti

Realitná kancelária KAPA REAL ESTATE Vám exkluzívne ponúka na predaj slnečný, priestranný 4-izbový byt s veľkou jedálňou, ktorý sa nachádza v tichej okrajovej časti sídliska Sekčov - na Višňovej ulici v Prešove.

ZÁKLADNÉ ÚDAJE:
Ulica: ulica Višňová , sídlisko Sekčov, Prešov
Dispozícia: 4-izbový byt
Úžitková plocha bytu: 88 m2 (bez plochy pivnice, ktorá má viac než 6 m2)
Poschodie: vyvýšené prízemie / 7. poschodí
Orientácia: JV / SZ
Energetická náročnosť budovy: B

DISPOZÍCIA BYTU: vstupná chodba, kúpeľňa, samostatná toaleta, jedáleň, kuchyňa, obývacia izba s výstupom na loggiu, spálňa, detská izba a pracovňa / hosťovská izba

POPIS BYTU:
Byt je v zachovalom a udržiavanom pôvodnom stave:
• plastové okná so žalúziami a sieťami proti hmyzu
• staršie rekonštruované jadro s vaňou
• samostatná toaleta
• laminátové podlahy v obytných miestnostiach v kombinácii s keramickou dlažbou vo vstupnej chodbe
• kuchynská linka so spotrebičmi (plynová varná doska, elektrická rúra, umývačka riadu)
• pôvodné liatinové radiátory
• pôvodné vstupné dvere s koženkou a drevené interiérové dvere
• priestranná a slnečná loggia s exteriérovými žalúziami

POPIS BYTOVÉHO DOMU:
• obnova a zateplenie fasády bytového domu, vrátane rekonštrukcie strechy
• rekonštrukcia spoločných priestorov - vchod, plastové okná, vchodové dvere, poštové schránky
• kompletná výmena stúpacích rozvodov, rozvodov vody a plynu
• správcom bytového domu je SPRAVBYTKOMFORT, a.s., so sídlom na Volgogradskej ulici
• na jednom podlaží sa nachádzajú len dva byty
• bytový dom bol kolaudovaný a odovzdaný do užívania v roku 1983

CENA A PLATBA:
• cena: 185 000,- Eur
• platba: možná aj prostredníctvom hypotekárneho úveru (bezplatne Vám pomôžeme s jeho vybavením) 

POPIS OKOLIA: V okolí sa nachádza kompletná občianska vybavenosť: obchody, služby, škôlky, školy, detské ihriská, pošta, atď.​. Byt sa nachádza v tichej, okrajovej časti sídliska Sekčov s množstvom zelene.

CELKOVÝ DOJEM MAKLÉRA: Byt je vhodný pre ľudí, ktorí ocenia komfort bývania na sídlisku, kde majú všetko na dosah s vysokým štandardom bývania, s možnosťou rekonštrukcie podľa vlastného vkusu.

Maroš  Chavko
Maroš Chavko

realitný maklér

+421 908 338 119

maros.chavko@kapareal.sk

Najnovšie z našej ponuky